Beskrivelse
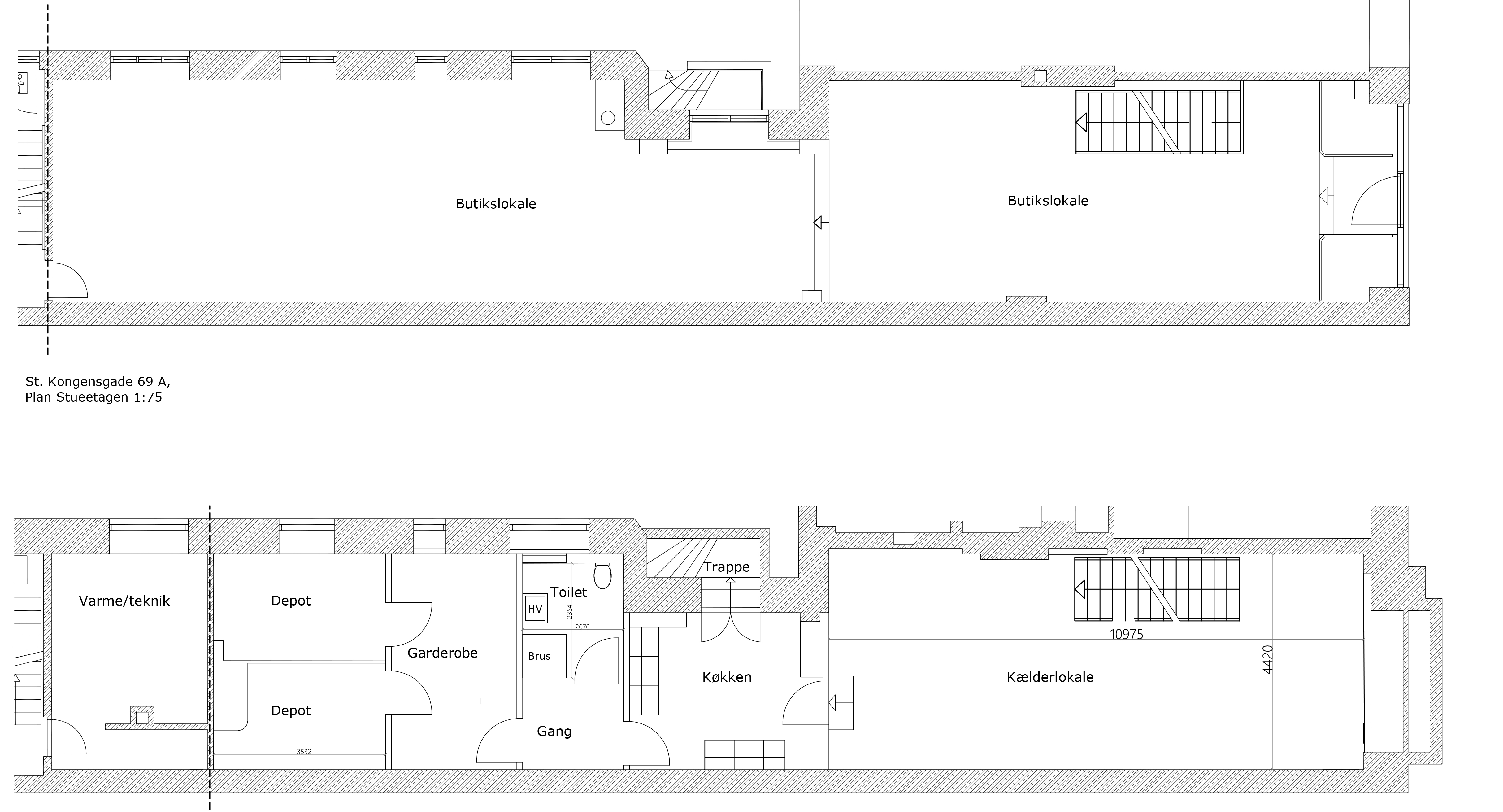
Forretning i Store Kongensgade lige ved Marmorkirken. Lejemålet indeholder 160 m2 forretning + 127 m2 højloftet kælder, der er indrettet til sekundært butiksareal, lager, personalerum, køkken og toilet.
160 m2 forretning
Lokalerne egner sig perfekt til butik, showroom eller galleri. Der er store udstillingsvinduer mod Store Kongensgade. Og der er store vægflader i hele lejemålet, som kan udnyttes til optimal præsentation af dine varer. Rummet er optimeret til at kunne rumme dit sortiment, og alle sekundære faciliteter er placeret i kælderen.
- Smukke glaslofter
- Trægulv i hele butikken
- Hvidmalede vægge og lofter
- Vinduesparti i fuld facadebredde
- Lodrette design-radiatorer
- Basisbelysning i skinnesystem under lofterne
127 m2 kælder
Nedgangen til kælderen ligger i den forreste del af butikken, hvor en ligeløbet trappe leder til kælderen. Den forreste del af kælderen kan anvendes til sekundært butiksareal, og allerede fra indgangen kan man kigge ned i kælderen. Derudover får du et stort baglokale og lagerplads, samt et pænt køkken / personalerum og et meget elegant badeværelse med væghængt toilet og brus.
Overtagelsesstand
Lokalerne overtages indflytningsklart, hvor alt er flot istandsat inkl. nyslebet trægulv, friske nymalede vægge og med flot køkken og elegant badeværelse.
EJENDOMMEN:
I Store Kongensgade 69 får du klassisk københavnercharme og moderne komfort. Ejendommen fremstår velholdt med en elegant facade og smukke originale detaljer.
BELIGGENHED OG OMRÅDE:
Ejendommen er attraktivt beliggende midt i Store Kongensgade lige ved Marmorkirken. Her er der et rigt handelsliv, og der er desuden mange kontorer og meget beboelse i lokalområdet. Grundet naboskabet til Marmorkirken er der også mange turister i Store Kongensgade. Placeringen er derfor særligt interessant for virksomheder, der ønsker central placering og høj synlighed. En sjælden mulighed for at etablere sig i et af Store Kongensgades mest veldisponerede lejemål.
Parkering
Der er gode parkeringsmuligheder i området. Parkering på gaden mod betaling, Københavns Kommune, grøn zone, kr. 44/17 pr. time dag/aften. Ingen parkering på ejendommen. Erhvervslicens kan købes hos Københavns Kommune.
Offentlig transport
Metro Station Marmorkirken, 50 meter
Metro Station Kongens Nytorv, 650 meter
Østerport Station, S-tog og IC, 950 meter
Busforbindelser i Store Kongensgade, Bredgade og Gothersgade.
ØKONOMI:
287 m2 forretning
Årlig leje kr. 473.550 / kr. 39.462,50 pr. måned / kr. 1.650 pr. m².
Drift og skatter kr. 100.450 / kr. 8.370,83 pr. måned / kr. 350 pr. m².
Vand og varme á conto kr. 14.350 årligt / kr. 1.196 pr. måned
25% moms på alle ydelser
Kontakt DAL Erhvervsmægler, Cand.jur., SIOR, Ejendomsmægler & Valuar MDE, tlf. 70 300 555 for udlejningsprospekt og aftale om fremvisning af lejemålet.
































