Beskrivelse
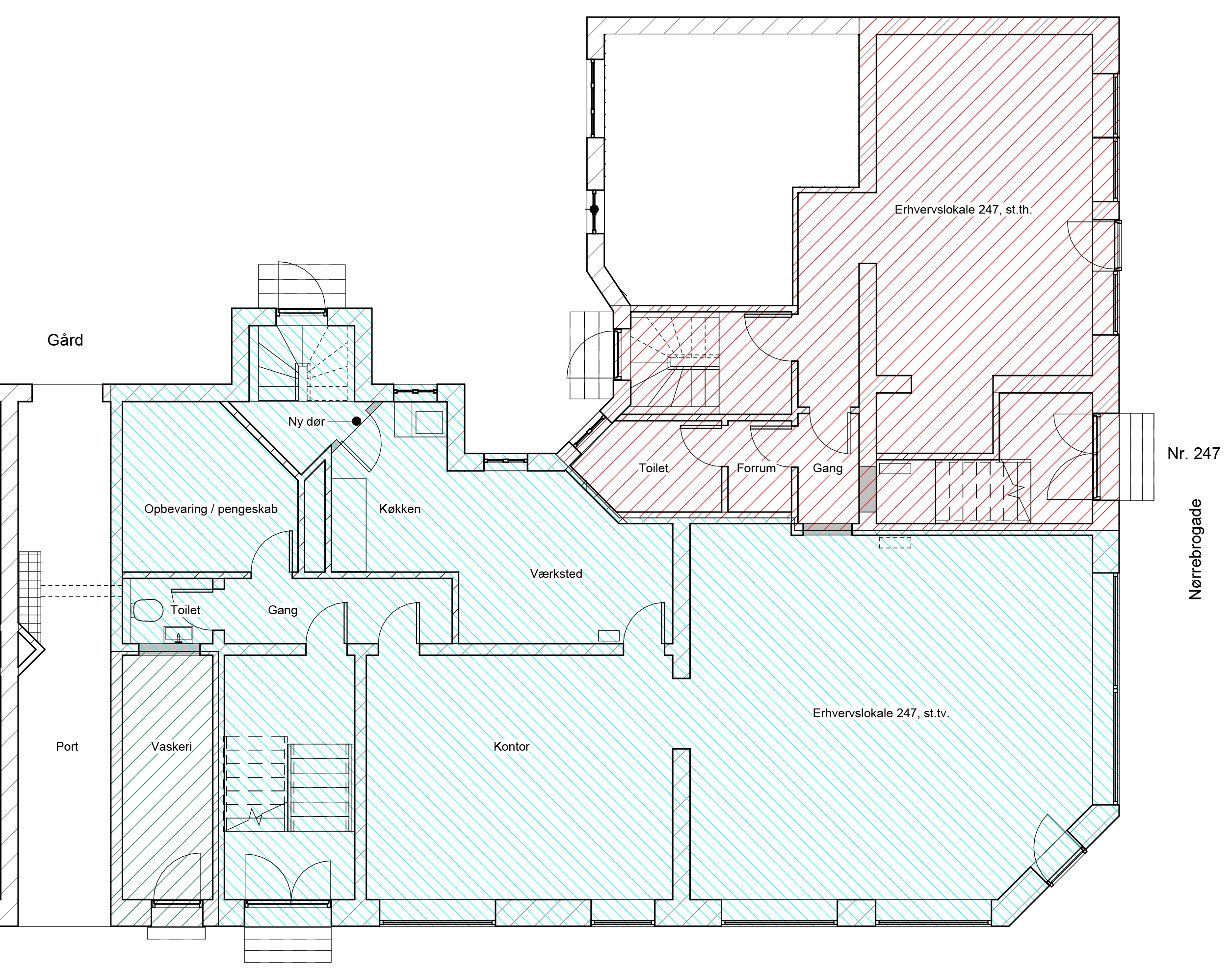
74 m2 nyistandsat forretning direkte ud til Nørrebrogade og Mimers Plads. Oplagt mulighed for restaurant- & takeaway koncept.
Lejemålet er veldisponeret og attraktivt indrettet. Indgang til venstre i facaden, og med et meget stort vindue til højre for indgangspartiet. Eksponeringen er god direkte ud til Nørrebrogade.
Indenfor træder dine kunder direkte ind i et meget regulært og kvadratisk forretningslokale. Lokalet kan let indrettes til ethvert koncept på klassisk vis, f.eks. med stort salgsareal forrest, og bagerst med fordelingsgang, toilet med håndvask og køkken.
Lejemålet har netop gennemgået komplet istandsættelse. Indvendigt er alt er nyistandsat: Gulv, vægge, lofter, belysning, elinstallation, radiatorer og sanitet. Du skal blot komme, og færdiggøre indretningen til dit eget koncept.
Anvendelse
Detailhandel og showroom, alle brancher.
Restaurant og takeaway?
Ja, lejemålet kan lejes til madproduktion inkl. varmt køkken.
Godkendelse
Udlejer skal godkende lejer og koncept.
Overtagelse
Lejemålet overtages efter aftale med udlejer.
Eksklusivt mandat
DAL Erhvervsmægler har eksklusivt mandat til at repræsentere udlejer på sagen. Alle henvendelser bedes rettet til DAL Erhvervsmægler på tlf. 70 300 555 og info@dal.dk.
EJENDOMMEN:
Nørrebrogade 247 er en klassisk københavnsk etageejendom, opført i 1896. Bygningen har en tidstypisk og klassisk arkitektur i gule mursten. Der er flere fine detaljer og et solidt håndværksmæssigt udtryk. Ejendommen er en hjørneejendom, hvilket også giver god synlighed til erhvervslejerne.
Ejendommen rummer i alt 1.548 m2 beboelse (28 boliger) og 456 m2 erhverv (6 erhvervsenheder).
Energimærkning
Energimærke nr. 311469501 udstedt 23. oktober 2020. Energiklasse C.
BELIGGENHED OG OMRÅDE:
Nørrebrogade 247 er en attraktiv beliggenhed i det populære kvarter mellem Nørrebro Station og Mimers Plads. Området byder på hyggelige caféer, et varieret butiksliv, grønne parker og mange kulturtilbud. Ejendommen ligger også tæt på rekreative områder som Nørrebroparken og Superkilen.
Offentlig transport findes indenfor 100 meter, hvilket gør hverdagen nem og bekvem, når du let kommer rundt i byen. Området er meget populært blandt unge, studerende og børnefamilier, hvilket skaber et levende og dynamisk miljø. En attraktiv adresse i København.
Parkering
Gul zone, kr. 16 pr. time kl. 08-16.
Ejendommen tilbyder ikke parkeringspladser.
Offentlig transport
Bus, 50 meter, Nørrebrogade
Tog, 100 meter, Nørrebro Station
Metro, 100 meter, Nørrebro Station (Metro)
ØKONOMI:
- 74 m2 forretning
- Årlig leje kr. 177.600/ kr. 14.800 pr. måned / kr. 2.400 pr. m².
- Alle driftsudgifter og skatter er inkluderet i huslejen / kr. 0 pr. m².
- Fjernvarme og vand á conto kr. 8.960 årligt / kr. 747 pr. måned.
- Lejen tillægges 25% moms.
Kontakt DAL Erhvervsmægler, Cand.jur., SIOR, Ejendomsmægler & Valuar MDE, tlf. 70 300 555 for udlejningsprospekt eller aftale om fremvisning af lejemålet.
































